

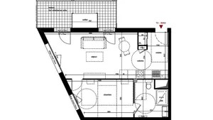
SPÉCIAL INVESTISSEUR OU PREMIER ACHAT Appartement 2 pièces, 35 m2 environ, rez de chaussé au cœur de la ville de Saint Julien en Genevois dans une résidence sécurisée et récente. Ce bien comprend 1 chambre avec sa salle de bain, une pièce à vivre de 20 m2 environ avec sa cuisine ouverte sur le séjour. Le tout donnant sur une terrasse sécurisée de 24 m2 environ un grand garage complète ce bien. Aucun travaux à prévoir L'appartement à une situation parfaite pour un investissement locatif, il est à 200 mètres de la douane pour Genève et à 5 min à pieds de toutes les commodités ( écoles, commerces, hôpital, transport, bus, tram pour Genève) N'attendez plus... La présente annonce immobilière vise 1 lot principal situé dans une copropriété formant 119 lots au total ne faisant l'objet d'aucune procédure en cours et d'un montant de charges d’environ 133 € par mois (soit 1596 € annuel) déclaré par le vendeur. Honoraires d’agence à la charge du vendeur.Information d'affichage énergétique sur ce bien : classe ENERGIE A indice 167 et classe CLIMAT A indice 33. Les informations sur les risques auxquels ce bien est exposé sont disponibles sur le site Géorisques : www.georisques.gouv.fr. La présente annonce immobilière a été rédigée sous la responsabilité éditoriale de Mme Alexandra RONDINELLI EI (ID 60327), mandataire indépendant en immobilier (sans détention de fonds), agent commercial de la SAS I@D France immatriculé au RSAC de THONON LES BAINS sous le numéro 904390069, titulaire de la carte de démarchage immobilier pour le compte de la société I@D France SAS.
Ref: 1488336
of
Fees incl. VAT payable by the seller
See the fees scaleEnergy performance diagnosis
Greenhouse gas emission index
Similar properties



